5 locali in vendita

Voghera, Via XX Settembre
€ 149.000
5 locali 5 locali
171 Mq 171 Mq
2 bagni 2 bagni

5 locali in vendita

Voghera, Via XX Settembre

Descrizione annuncio

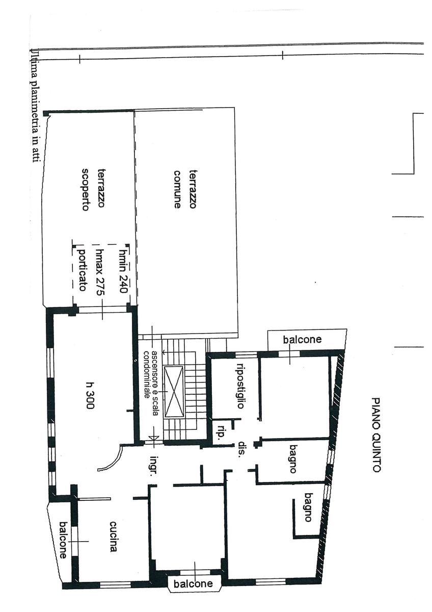
VOGHERA CENTRO - VIA XX SETTEMBRE in contesto residenziale e tranquillo, a ridosso di piazza Duomo, farmacie, supermercati, poste, scuole e nelle immediate vicinanze di stazione ferroviaria ed ospedale, proponiamo attico di ampia metratura posto al quinto piano, servito da ascensore. La disposizione interna comprende cinque locali spaziosi, ideali per chi cerca ambienti luminosi e ben distribuiti. L'immobile è composto dalla zona giorno con ampio ingresso, cucina abitabile con penisola che si apre su doppio salone con camino; il salone si affaccia su di un grande terrazzo, che offre una vista panoramica sulla città e che permette di trascorrere momenti di relax e tranquillità; disimpegno che separa la zona notte dalla zona giorno, tre ampie camere da letto, di cui due con affaccio su balcone, uno studio, due bagni e ripostiglio. La proprietà comprende un locale sottotetto e cantina.

Mostra tutto

Nelle vicinanze

Trasporto pubblico Trasporto pubblico
stazione di Voghera
stazione di Voghera
740 m
Trasporto pubblico
510 m
Ricariche auto elettriche Ricariche auto elettriche
Voghera Lomellina | BECHARGE
2,3 Km
Scuole Scuole
Ist. Tecnico Vittorio Alfieri
300 m
Scuola Media Statale Giovanni Plana
390 m
Scuola Elementare Statale Dante Alighieri
410 m
Istituto Santa Caterina
430 m
Scuola primaria Leonardo da Vinci
440 m
Farmacia Farmacia
Farmacia Dottor Gazzaniga
30 m
Farmacia Dottor Moroni
210 m
Farmacia Dottor Gregotti
280 m
Farmacia Dottor Lugano
330 m
Parafarmacia PARAFARM - Dott. Murelli
340 m
Ospedali Ospedali
Ospedale civile di voghera entrata posteriore
430 m
Ospedale Civile di Voghera
510 m
Casa di Cura Santa Maria delle Grazie
1,0 Km
Supermercati Supermercati
Gulliver
240 m
Tigota
270 m
Supermercati
600 m
LD Market
660 m
Esselunga
840 m
Negozi Negozi
La Delizia C&D Abbigliamento
80 m
Negozi
140 m
Crevani Abbigliamento
300 m
Ronchi
320 m
Calzedonia
340 m
Bar Bar
Bar Via Venti
100 m
Bar Clipper
180 m
Leon d'Oro Café
180 m
Cremeria Duomo
200 m
Bar
270 m
Ristoranti Ristoranti
Ristorante Pio e Vale
220 m
Pizzeria Gallo Rosso
270 m
Ristorante Rimulàs
320 m
Centro Japanese restaurant
330 m
La Muraglia
340 m
Mostra tutto

Caratteristiche

Rif.:
61178751
Piano:
5 di 6 con ascensore (Piano alto)
Balconi:
3
Terrazzi:
1
Camere da letto:
4
Arredamento:
Assente
Mostra tutto
Prezzo Prezzo
€ 149.000
Rata mutuo Rata mutuo
€ 704 / mese
Proponi il tuo prezzoProponi il tuo prezzo

Classe Energetica

G
G
G
G
G
G
G
G
G
EP globale non rinnovabile:
215.75 kW h/m² anno
EP invernale del fabbricato:
EP estiva del fabbricato:
Anno di costruzione:
1980
Riscaldamento:
Centralizzato
Tipo impianto:
A radiatori
Tipo alimentazione:
Metano

Ti interessa visionare l'immobile?

Fissa un appuntamento  Fissa un appuntamento

Richiedi informazioni

Clicca su Leggi per aprire l'informativa
* Questi campi sono obbligatori

Calcola il tuo mutuo

Semplice e senza impegno
Anticipo

( % )
Mutuo

( % )

pochi semplici passi

inserisci i tuoi dati
Questionario completato
Grazie per aver richiesto un appuntamento senza impegno con un nostro Consulente del Credito e Assicurativo.

Hai inserito correttamente tutti i dati necessari e a breve riceverai una e-mail con un link da convalidare per inviare i tuoi dati.
Affiliato
Studio Voghera Fides D.I.
Via XX Settembre, 48 27058 Voghera (PV)

Il nostro staff


  • Maria Laura Astori
    Affiliata

  • Jessica La Barbera
    Coordinatrice
Via XX Settembre, 48 27058 Voghera (PV)
Zona: Oltrepo Pavese-Voghera-Zona Ospedale
Mostra su mappa
Orari: lunedì: dalle 9:00 alle 12:30 - dalle 15:00 alle 20:00 sabato: dalle 9:00 alle 12:30
Affiliato
Studio Voghera Fides D.I.
Via XX Settembre, 48 27058 Voghera (PV)

2026 Tecnocasa Franchising S.p.A. - P. IVA 08365160152 - Via Monte Bianco 60/A 20089 Rozzano (MI). Ogni agenzia ha un proprio titolare ed è autonoma. Privacy policy | Policy utilizzo | Cookie policy